柳东又添新学校!“明德中学”规划总平面图出炉,拟建45个班
来源:在柳州APP 发表日期:2021-11-18 浏览:次
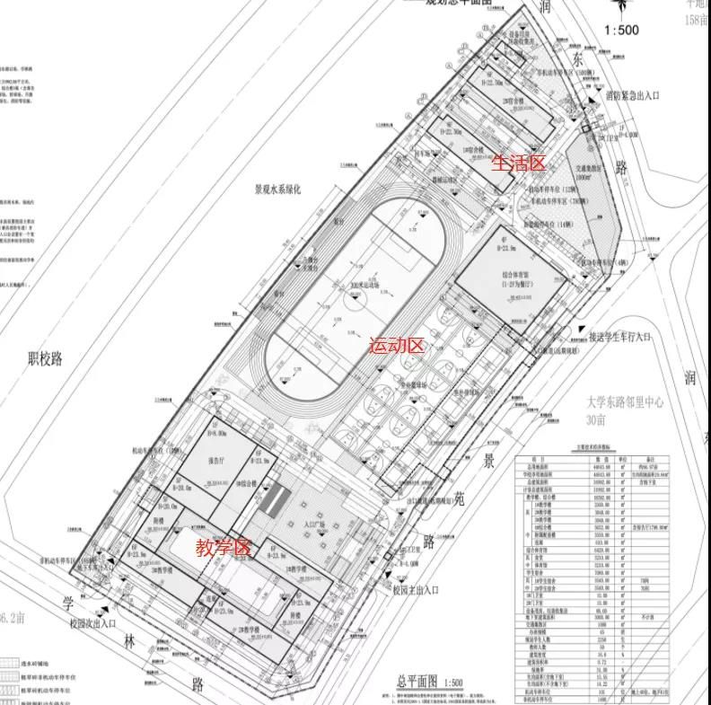
近日,柳州市自然资源和规划局网站公布了“明德中学”的批前公示。据了解,该中学位于柳东新区职校路东部,柳东新区体育公园东面,职校路以东,景苑路以西,润东路以南,学林路以北;拟建45个班,规划学生人数2250人。

规划总平示意图
“明德中学”项目规划总用地面积44643.68平方米(约66.97亩),总建筑面积34992平方米,其中地上31992平方米,地下3000平方米。项目用地呈不规则矩形,整个地势东北角高,场地北面有一片既有树木林,场地内无既有建筑。
项目将规划三个功能分区,南面为教学区,中部为体育运动区,北面为生活区。教学区规划建设三栋教学楼,两栋附楼,与综合楼采用回字型布局,围合出一个内庭院。
项目主要建设教学楼3栋,附楼2栋,综合楼1栋(含报告厅),体育馆1栋(含学生食堂)、学生宿舍2栋、地下车库,以及室外300米环形塑胶跑道运动场、篮球场、排球场,升旗台、机动车停车位、非机动车停车位、门卫室、大门、围墙等。



















